Project Brief: The intent of River Path Gardens is to follow in the foot steps of SquareOne Villages in providing housing and services to aid those who may have been afflicted by disaster and economic hardships.
There are three phases to the development of this project.
1. Micro Units – Must be constructed by a small group of people. Must also be cost efficient. The Micro Units are intended as permanent housing structures that start off as plywood pods, and has been designed to expand over time into a larger living unit to serve the needs of residents. The cluster of units will initially be supported by mobile facilities such as porta-potties and tented spaces.
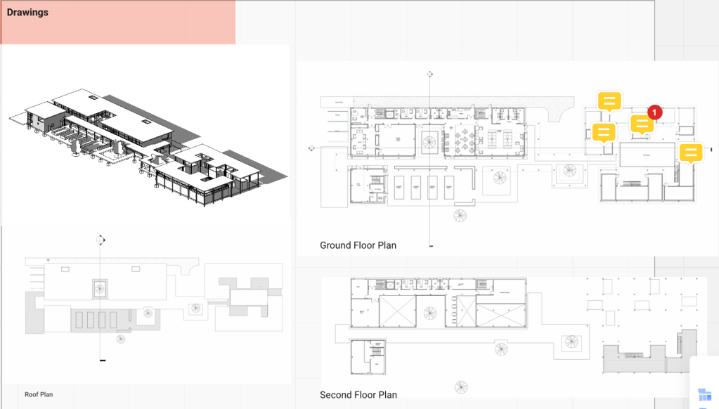
2. The Community Center – This will be constructed following the completion of the Micro Units. This program has a more flexible set of requirements, the primary goal being how it can meet and support the various needs of the residents.
3. The canopy roof Structure – There will be a canopy structure that will be added over the Micro Units in the third phase of this project. As the Micro Units begin to fill out into larger living units, a waffle canopy structure that mimics the community center will then be applied to acts as roof top balcony spaces.









Leave a comment